浙江省2010年1月高等教育自学考试
工程图学基础试题
课程代码:06918
一、标注识别(本大题共3小题,每小题4分,共12分)
1.
该图表示的内容为?
2.
该图表示的内容为?
3.
该图表示的内容为?
二、名词解释(本大题共3小题,每小题4分,共12分)
1.电施
2.建筑模数
3.层高
三、绘制如下模型的三面正投影图,尺寸从图中量取(本大题21分)

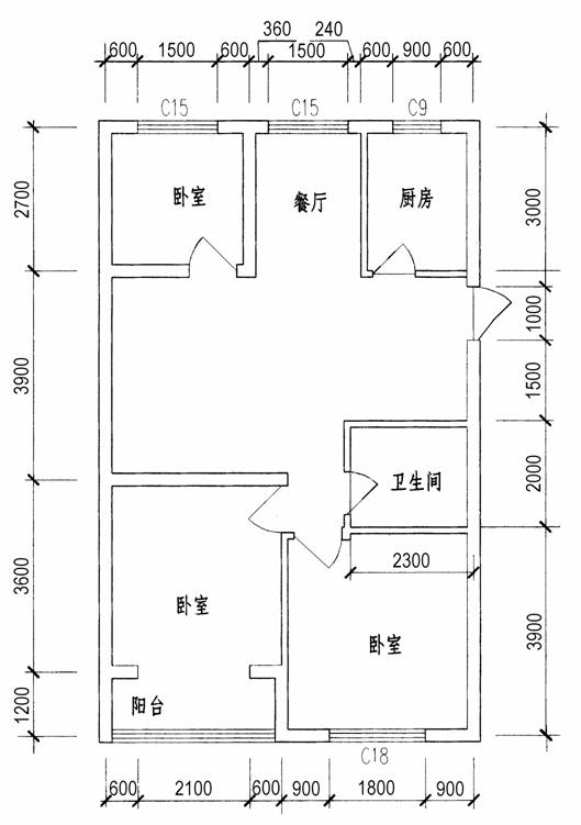
四、绘制图纸(本大题55分)
根据提供的简化图纸(下图),按1∶100绘制施工图,墙厚240mm,在所给尺寸的基础上使用规范的尺寸标注,并标出定位轴线。
要求:1.图纸比例准确,线形等级清晰。
2.使用规范的图标和标注。
3.图纸卷面清晰。
